
四川筑骏建设工程有限公司
地址:成都市成华区双福一路66号4栋(华润·万象星座)11层4、5、6号
电话:028-66873888 / 87538111转801
网址:www.zgsczjjs.cn
邮箱:2839126565@qq.com
|转至:输电趣坛
变电站核心中的核心是 变压器,
也称“主变”,
是变电站的“心脏”,
也是变电站内最大、最显眼的设备。
通常位于变电站的中间部位。

变压器我们应该容易理解,
因为中学物理都学过:
闭合磁铁的两侧因为线圈数量的不同,
可以实现两侧电压的变化,
这就是变压器的基本原理。

▲ 变压器原理

▲ 变电站变压器

▲ 变电站变压器
为了电流的调度方便,
变压器的两侧一般会有“母线”。
是电流的“主干道”或“汇流排”。
所有进线、出线的电能都汇集到这里进行再分配。
母线就像是一个公共连接点,
使得任一条进线的电能可以灵活地分配到任一条出线。

每条输电线路都会接入变电站的一个特定“间隔”。
为了保证母线和进线构架之间线路的灵活断开,
同时实现线路的保护和测量,
会在间隔内布置一系列设备。
其中:
隔离开关和断路器用于电路的开断。
避雷器用于线路的保护,
电压互感器和电流互感器用于线路的测量。
一个典型的110kV出线间隔断面图(户外站)
如下图所示:

▲ 110kV出线间隔断面图(户外站)

▲ 110kV出线间隔平面图(户外站)
设备详细介绍如下:
①隔离开关:
用于在设备检修时,
建立一个肉眼可见的、可靠的空气绝缘断开点,保证安全。
它不能带大电流开断。

②断路器:
变电站的“开关”,
能在故障时瞬间自动切断巨大电流,
是保护系统的核心执行部件。

断路器和隔离开关都是断开电路作用。断路器有灭弧装置,可以断开工作和短路电流,但其断口不可见,即使误合闸我们也看不出。而隔离开关的断口可见,
停电检修时更能保障人员安全,但不可以带负荷分合闸,所以两者要配合使用,停电时应先断开断路器,再拉刀闸,送电反之。

如何从外形上区分断路器:断路器分两截组成,上面一截是切断电流的部位,下面一截是起到支撑和绝缘的作用,外形上看导线从上面进,中间出。
③电流/电压互感器:
电流互感器(CT)和电压互感器(PT)
相当于系统的“眼睛”和“耳朵”,
将高电压、大电流按比例缩小,
提供给保护、测量设备使用。

▲ 电流互感器

▲ 电压互感器
④避雷器:
保护设备免受雷电过电压损害,
通常安装在线路入口处。

关于变电站的类型我们都听说过这样几个名词:
“AIS站”(或者户外敞开站、户外站)
“GIS站”(或户内站)
它表示了变电站的两种类型。
上图中所有图片都是户外敞开式变电站,
也是最常规,最普遍的变电站类型。
户外敞开式变电站通常称为 AIS,
全称是 Air-insulated Switchgear,
即空气绝缘开关设备站。
其特点是:
所有带电设备靠空气绝缘,
采用的是设备分立、露天分散布置。
你可以清晰地看到,
母线是裸露的导线或管母,
悬挂或架设在构架上;
断路器、隔离开关、互感器等都是独立的设备,
通过裸露的导线连接在一起。
整个站区布局舒展,
设备之间需要留出足够的安全空气距离。
其布局图看起来像是一张设备点位明确的平面规划图。

▲ 某500kV户外变电站

▲ 某330kV户外变电站
最早的变电站基本都是户外敞开式的。
这种设计简单、成本较低,
但有一个很大的缺点:非常占地方。
因为高压电在空气中需要保持很远的距离才能安全,
所以电压等级越高,
变电站就需要建得越开阔。
随着城市发展,
地价越来越贵,
在市中心找一大片空地建变电站变得非常困难。
同时,人们也希望变电站更美观、更少受天气影响。
于是,工程师们想出了一个办法:
把所有这些设备,
不是敞开放在空气中,
而是全部封装到一个接地的金属壳子里,
然后在壳子里充入绝缘性能非常好的六氟化硫(SF₆)气体。
这样一来,带电部分之间的绝缘距离可以大大缩短。
这种设备就叫气体绝缘金属封闭开关设备,
用它建成的变电站就叫GIS站。
相对于“户外站”,GIS站也叫“户内站”。
GIS站最大的优势就是占地小,
通常只有同规模敞开站的几分之一,
可以建在地下、楼内或城市中心,
解决了土地紧张的问题。
但即使是GIS变电站,
也有不同的布置方式,
不同的布置方式有不同的形态和大小。
1、全户内GIS变电站
所有GIS设备(包括进线套管)都安装在建筑物厂房内。
主变压器也可能放在室内或有防火墙隔离的室内。
设备布置极其紧凑,常采用多层(如2-3层)立体布置,将不同电压等级的母线、线路间隔上下叠放。
适用:
城市核心区、超高密度商业区、
对景观和环保有严苛要求的地区

▲ 某220kV全户内GIS变电站

▲ 某110kV户内GIS设备
2、户外GIS变电站
GIS的各个模块(断路器、母线筒等)像户外敞开设备一样,
直接安装在户外的混凝土基础上,
但有顶棚或防雨罩保护。
变压器在户外敞开布置。
适用:
城市郊区、工业区、土地相对宽松但仍有节约用地需求的区域。
这是最常见的GIS站类型。

▲ 某110kV户外GIS变电站

▲ 某110kV户外GIS变电站
3、地下GIS变电站
全部或主要设备安装于地下洞室或深埋基坑中,
地面仅保留出入口、通风井和可能的地面换流站/控制楼。
适用:
特大城市核心区、山区、作为战略备份的枢纽站。

▲ 某330kV地下变电站施工现场

▲ 某330kV地下变电站建成图
不同变电站类型不同,布置方式不同,
输电线路的进线方式也不同,
线路专业需依据变电站的设计方案进行匹配。
常见的几种进线方式如下:
1、架空+构架
多用于AIS站和户外GIS站,
也是最常见,最常用的进线方式。

▲ 架空+构架

▲ 架空+构架

▲ 架空+构架
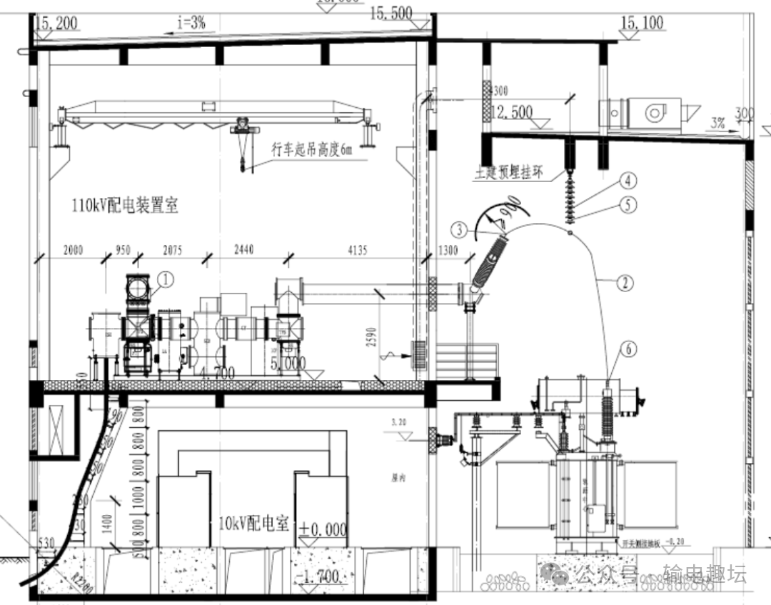
2、架空+穿墙套管
户内GIS站也可以采用架空进线,
通过一个架空线至GIS的套管
(俗称“象鼻子”或“穿墙套管”) ,
将架空导线直接引入GIS母线。

▲ 110kV户内GIS站进线

▲ 穿墙套管

▲ 220kV户内GIS站进线
3、架空转电缆进线
架空线路可在电缆终端塔处转电缆进线,
也可以在构架处转电缆进线。

4、全电缆进线
线路全程采用电缆,
直接通过电缆通道进入变电站。

▲ 110kV户内GIS站电缆进线

▲ 110kV电缆从电缆沟进变电站

▲ 110kV电缆待接入GIS设备
在线客服